|
|
 |
| |
| 首页 >> 技术中心 >> 管道式汽水混合器 |
管道式汽水混合器
静态混合器 加入时间:2012-9-16 20:28:54 点击:次 |
|
|
SQS系列管道式汽水混合器是新型节能环保产品,它是利用蒸汽与水直接混合将水加热,具有低噪声、无振动、热交换效率高、节省能源等特点,被广泛地使用在生活、生产用热水及热水采暖和热力除氧等系统中,该加热器主要由喷管、壳体、网板、垫圈等部分组成,被加热水通过呈拉尔管状的喷管时,蒸汽从喷管外侧通过管壁上许多斜向的小孔喷入水中,二者在高速流动中瞬间良好混合,以达到加热的目的 。 |
| SQS 系 列 汽 水 混 合 器 |
|
一、产品简介
SQS系列管道式汽水混合器是我公司开发研制的新型节能环保产品,它是利用蒸汽与水直接混合将水加热,具有低噪声、无振动、热交换效率高、节省能源等特点,被广泛地使用在生活、生产用热水采暖和热力除氧等系统中。长期运行实践证明,该产品使用效果良好,尤其经过我公司为用户配套供应大小头、各种阀门、仪表、水泵、温控器等后,给用户带来极大的方便,同时保障了系统的正常运行。
二、结构及原理
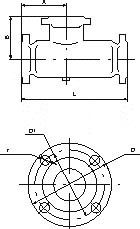
该混合器主要由喷管、壳体、网板、垫圈等部分组成。被加热水通过呈拉伐尔管状的喷管时,蒸汽从喷管外侧通过管壁上许多斜向小孔喷入水中,两者在高速流动中瞬时良好混合,以达到加热水的目的 ,调节蒸汽侧阀门(手动或电动调节阀),就可得到所需温度的热水。
三、工作特性
对于不同型号规格的加热器,为了加热不同温度的热水,在额定流量D1(t/h)下,所需蒸汽量可由下式计算:
D0=D1C1(T2-T1)/(i0"-C2T2)=D1(qT2-qT1)/(i"-C2T2)
式中:
C1-水在T1温度下比热(KJ/Kg·℃)
C2-水在T2温度下比热(KJ/Kg·℃)
T1-进入加热器水温(℃)
T2-加热后的水温(℃)
i"-进入加热器在压力P0下的饱和蒸汽热焓(KJ/Kg)
●开式系统蒸汽消耗量表(饱和蒸汽压力为0.4MPa)
| SQS- |
4 |
6 |
8 |
10 |
12 |
16 |
20 |
24 |
32 |
40 |
48 |
| 额定进水流量D 1 |
1.2 |
2.5 |
4.5 |
7.0 |
10 |
16 |
25 |
35 |
60 |
105 |
165 |
| 加热温差℃ |
20 |
0.039 |
0.081 |
0.146 |
0.228 |
0.325 |
0.520 |
0.813 |
1.138 |
1.951 |
3.145 |
5.366 |
| 40 |
0.081 |
0.188 |
0.303 |
0.471 |
0.672 |
1.076 |
1.681 |
2.353 |
4.034 |
7.507 |
11.092 |
| 60 |
0.125 |
0.261 |
0.469 |
0.730 |
1.043 |
1.669 |
2.609 |
3.652 |
6.261 |
10.952 |
17.217 |
| 80 |
0.173 |
0.360 |
0.649 |
1.009 |
1.441 |
2.306 |
3.603 |
5.045 |
8.649 |
15.135 |
23.784 |
●循环系统蒸汽消耗量t/h
| SQS- |
4 |
6 |
8 |
10 |
12 |
16 |
20 |
24 |
32 |
40 |
48 |
| 额定进水流量D 1 |
1.2 |
2.5 |
4.5 |
7.0 |
10 |
16 |
25 |
35 |
60 |
105 |
165 |
| 加热温差℃ |
70-95 |
0.054 |
0.112 |
0.201 |
0.312 |
0.446 |
0.714 |
1.116 |
1.562 |
2.678 |
4.687 |
7.366 |
| 70-110 |
0.088 |
0.183 |
0.330 |
0.514 |
0.734 |
1.174 |
1.830 |
2.569 |
4.404 |
7.706 |
12.110 |
| 70-130 |
0.137 |
0.286 |
0.454 |
0.800 |
1.143 |
1.829 |
2.857 |
4.000 |
6.857 |
12.000 |
18.807 |
|
安装使用说明
(一)本设备的使用条件:
1.安全运行条件:进入加热器的蒸汽压力---
SQS-4~SW-24 P0≤1.6MPa, SQS-32~SQS-48 P0≤1.0MPa
2.良好运行条件:
SQS-4~SQS-24 P1+0.05≤P0≤0.6MPa 式中:P0-------蒸汽工作压力 (MPa)
SQS-32~SQS-48 P1+0.05≤P0≤0.35MPa P1-------进水压力 (MPa)
对于SQS-32~SQS-48产品在循环系统中,如果进水压力较高(不能满足 P1+0.05≤P0条件时,加热器应装设在水泵的吸水侧,采用热水循
环泵,使之良好运行。
3、SQS-32~SQS-48,一般应在地面上设支架或去墩,其负载按500Kg考虑,SQS-4~SQS-24,一般装在插墙支架或其它金属支架上。
4、混合器系统中所用的阀门,安装的位置可参照安装图
5、启停:
a..在开式系统中,先开水侧阀门;后开蒸汽阀门;停止运行时,先关蒸汽阀门再关水侧阀门。
b.在循环系统中,一般水的管路阀门是开的,只启、停水泵。因此投入使用时,先启动水泵,后开蒸汽阀门;停止时先关蒸汽阀门,后
停水泵。
6、对于经常停电的热水采暖系统,应在蒸汽管路上设置高温电磁阀。当有电时,电磁阀处于常温位置;当停电时,电磁阀处于关闭
位置,自动截断汽源,保障系统安全。
7、为了防止水进入蒸汽管,故蒸汽管靠近加热器处应装设止回阀。
8、水的压力损失:本加热器装设在循环水泵出口侧,未加入蒸汽时,其压力损失为50KPa;当装在水泵入口侧,未加入蒸汽时,
其压力损失为0.15MPa左右。在加入温差蒸汽后,其压力损失为零。
9、采用过热蒸汽作热源时,为降低噪声,可采取逐级加热(分段加热)的方式或蒸汽减温等办法。
10、开始投入运动时,有轻微的水击现象,但很快即可自行消失。
11、在开式系统中,进水压力P1大于2.0kg/cm2。当热源采用加热蒸汽时,应分段加热。
 |
| 图二 加热生活用水(开式系统) |
图三 加热生活用水(开式系统) |
(二)运用范围:
1.用于热水采暖系统中,作加热设备,代替原面式(间接)换水器。(图四和图五)
2.用于浴室加热热水送入水箱,代替热水箱中原高噪声、强振动的蒸汽直接加热方式(花管)。(图二)
3.用于除氧器预热软水(热水除氧)。
(三)安装方式: 本设备采用水平或垂直安装均可。
(四)在以电动泵为循环动力的热水采暖系统中,本混合器安装在水泵进水侧的条件:
A、混合器出口水温度必须低于水泵入口压力下沸腾的水温,即不能使水泵入口之水汽化;
B、必须低于水泵本身允许的工作温度。
(五)使用系统中必须设置的阀门、仪表及附表。 |
附表:订配套阀门仪表表
| |
蒸汽侧 |
进水侧 |
出水侧 |
| 管路阀门仪表使用系统 |
截止阀 |
止回阀 |
电磁阀 |
压力表 |
调节阀 |
截止阀 |
压力表 |
温度计 |
截止阀 |
压力表 |
温度计 |
| 热水采暖循环系统 |
√ |
√ |
※ |
√ |
√ |
√ |
√ |
√ |
√ |
√ |
√ |
| 浴室用水加热系统 |
|
※ |
|
√ |
√ |
√ |
|
|
√ |
|
√ |
| 除氧水预热 |
√ |
√ |
※ |
√ |
√ |
√ |
√ |
√ |
√ |
√ |
√ |
注:1.“※”为根据具体设计决定是否采用。
2.采暖和除氧是否设自动控制由具体设计提出。
3.上述配套产品,我厂可配套提供。
订货须知
使用单位订货时,须向厂方提供以下资料,以便选择合理的加热器。
1.加热水量(或循环水量)D1 (t/h);
2.饱和蒸汽压力 P0 (MPa);
3.进水压力 P1 (MPa);
4.进水温度 T1 (℃);
5.出水温度 T2 (℃)
|
|
|
上一页:蒸汽喷射器安装注意事项
下一页:浸没式汽水加热器 |
|
|